Jütenstraße 24-26 und Wendenstraße 15 in Bochum!
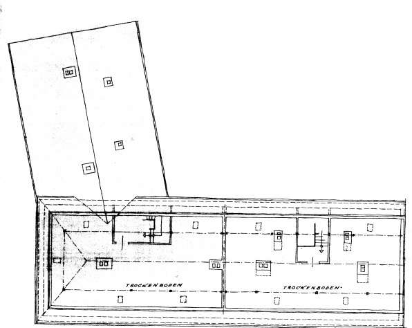
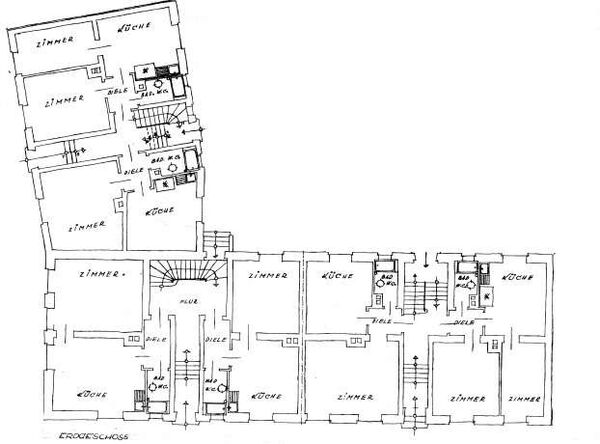
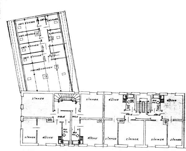
Die Wohnungen teilen sich auf 3 Hauseingänge auf.
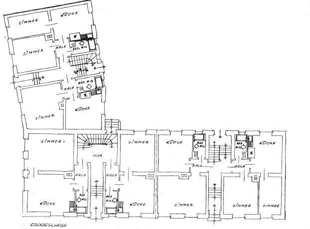
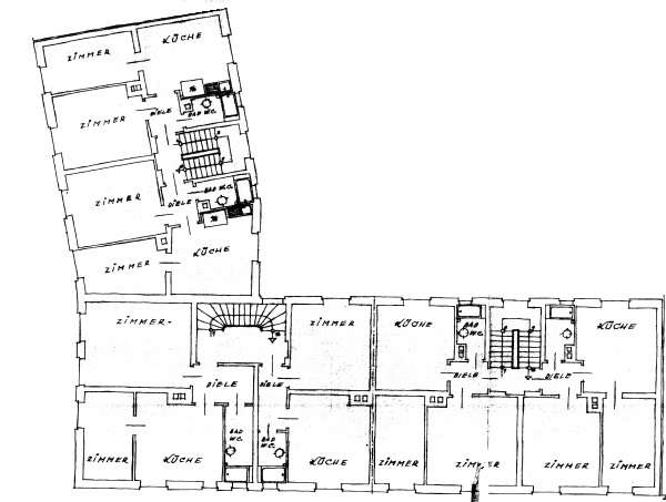
Es besteht ein attraktiver Wohnungsmix aus Wohnungsgrößen von ca. 32 qm über ca. 54 qm bis hin zu familienfreundlichen ca. 90 qm Wohnfläche. Hier ist für jeden etwas dabei! Mieterwechsel sind selten – eine Vielzahl der Wohnungen sind bereits seit vielen Jahren vermietet.
Die Elektrik ist in den meisten Wohnungen bereits erneuert.
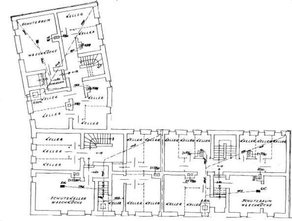
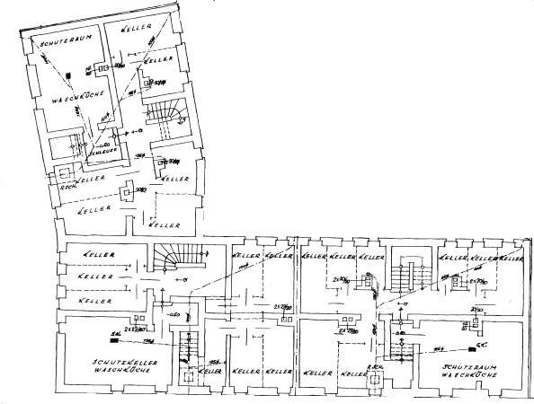
Die gesamte Wohnanlage ist unterkellert. Jeder Wohnung ist ein Kellerraum zugeordnet, Waschküchen sind vorhanden.
Beheizt werden die Häuser über eine moderne Gas-Zentral-Heizung (Contracting), die Kunststofffenster sind 2-fach verglast.
Die Stufen im Treppenhaus sind aus Stein.
Der Dachboden ist nicht ausgebaut und bietet ggfls. Ausbaumöglichkeiten.
Das Objekt bietet großes Potential, muss aber in einigen Bereichen professionell aufgearbeitet werden.
Das Haus liegt zentral und ruhig in unmittelbarer Nachbarschaft zur Jahrhunderthalle und dem beliebten Westpark. Auch die Innenstadt ist fußläufig zu erreichen. Die Anbindung an das Autobahnnetz, sowie an den ÖPNV sind sehr gut.
Alle Angaben über das Objekt haben wir vom Verkäufer erhalten. Wir sind bemüht, alle Informationen so vollständig und richtig wie möglich zu erhalten. Bitte haben Sie Verständnis dafür, dass wir keine Gewährleistung für die Richtigkeit der Angaben übernehmen können. Die Exposéhaftung wird ausgeschlossen. Maßgeblich sind die zwischen Käufer und Verkäufer geschlossenen Vereinbarungen. Grundrisszeichnungen, Bemaßungen und Größenangaben sind ohne Gewähr. Soweit nicht angegeben erfolgt der Verkauf ohne eventuell auf den Fotos vorhandenem Mobiliar und Zubehör.
Entdecken Sie unsere aktuellsten Immobilienangebote. Wir präsentieren Ihnen die neuesten Immobilien in Ihrer Region. Jedes Objekt wird individuell geprüft und mit Expertise bewertet
Alle Angebote ansehenBeschreiben Sie uns Ihre Wunschimmobilie – wir melden uns mit passenden Angeboten bei Ihnen. Gehören Sie zu den ersten, die über unsere neuen Angebote informiert werden – schon vor der Veröffentlichung!



Bei Fragen oder Anfragen stehen wir jederzeit zur Verfügung. Bitte zögern Sie nicht, uns mit Ihren Anliegen zu kontaktieren.