Hier ist was Sie schon lange gesucht haben!
Mehrgenerationenwohnen, das eigene Büro direkt im Haus - oder einfach die gesamte Fläche alleine nutzen. Viel Platz - hier ist alles möglich!
Kurz: Erst vor kurzem teilweise modernisiertes 2-Familienhaus im beliebten Marienheide am Kluppelberg. Terrasse und Balkone mit traumhaftem Weitblick ins Tal. Lichtdurchflutete und große Räume. Platz für die ganze Familie! Fußläufig zum Ortskern aber wunderbar ruhig gelegen mit unverbaubarem Talblick.
Das Haus liegt etwas versteckt in einer Sackgasse. Es gibt keinen Durchgangsverkehr, sodass Sie Ihre Kinder beruhigt vor dem Haus spielen und Radfahren lassen können. Das Wohnhaus wurde ursprünglich im Jahr 1986 in Fertigbauweise errichtet, ist vollständig unterkellert, verfügt über einen schönen und großzügigen Balkon und eine große Terrasse mit schönem Garten. Hier verbringen Sie schöne Stunden mit der Familie beim Grillen, Spielen oder einfach beim Sonnenbaden.
Im Jahr 2000 wurde ein Anbau (Massivbauweise) an dem hinteren Teil des Gebäudes errichtet.
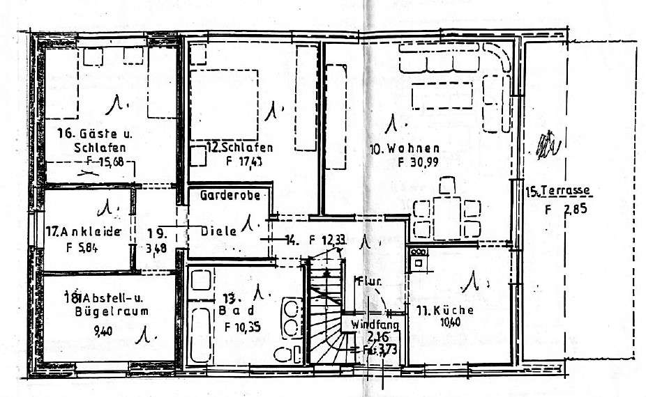
Im Zuge des Anbaus wurde auch das Dachgeschoss vergrößert, ausgebaut und modernisiert. Beide Seiten des Dachs sind fast vollständig begaubt. Dadurch gibt es in dieser Dachgeschosswohnung fast keine Schrägen und es können fast alle Räumlichkeiten vollständig genutzt werden.
Auch der Keller ist fast vollständig wohnlich ausgebaut. Hier hat sowohl das Büro als auch die kleine „Einliegerwohnung“ einen eigenen Eingang. Das Gäste-WC „für das Büro“ sowie das Badezimmer der „Einliegerwohnung“ wurde erst vor kurzem grundlegend modernisiert.
Die Beheizung erfolgt über eine Gas-Zentralheizung aus dem Jahr 2013 mit
Warmwasseraufbereitung.
Melden Sie sich gerne für mehr Informationen und einen unverbindlichen Besichtigungstermin!
Im wunderschönen bergischen Land liegt die Stadt Marienheide. Das Haus steht in einer ruhigen Sackgasse ohne Durchgangsverkehr auf einem Hügel mit wunderbarem Weitblick. Ideal für Kinder und Menschen die Ruhe und das Ländliche genießen wollen.
Dennoch benötigen Sie nur wenige Minuten zu den umliegenden Kindergärten, Schulen und Geschäften des täglichen Bedarfs. Dies ist alles auch fußläufig erreichbar. Ebenfalls der Ortskern von Marienheide ist nur wenige Minuten mit dem Auto entfernt.
Wunderschöne Naherholungsgebiete wie die Brucher Talsperre, das Schloss Gimborn, die Lingesetalsperre sowie der Unnenberg mit seinen traumhaften Wanderwegen sind mit dem Auto in wenigen Minuten zu erreichen.
Auch die wunderschöne und historische Klosteranlage Marienheide ist stets einen Ausflug wert.
Über die B256 und die B237 erreichen Sie schnell die umliegenden Ortschaften.
Alle Angaben über das Objekt haben wir vom Verkäufer erhalten. Wir sind bemüht, alle Informationen so vollständig und richtig wie möglich zu erhalten. Bitte haben Sie Verständnis dafür, dass wir keine Gewährleistung für die Richtigkeit der Angaben übernehmen können.
Die Exposéhaftung wird ausgeschlossen. Maßgeblich sind die zwischen Käufer und Verkäufer geschlossenen Vereinbarungen. Grundrisszeichnungen, Bemaßungen und Größenangaben sind ohne Gewähr. Soweit nicht angegeben erfolgt der Verkauf ohne eventuell auf den Fotos vorhandenem Mobiliar und Zubehör.
Entdecken Sie unsere aktuellsten Immobilienangebote. Wir präsentieren Ihnen die neuesten Immobilien in Ihrer Region. Jedes Objekt wird individuell geprüft und mit Expertise bewertet
Alle Angebote ansehenBeschreiben Sie uns Ihre Wunschimmobilie – wir melden uns mit passenden Angeboten bei Ihnen. Gehören Sie zu den ersten, die über unsere neuen Angebote informiert werden – schon vor der Veröffentlichung!



Bei Fragen oder Anfragen stehen wir jederzeit zur Verfügung. Bitte zögern Sie nicht, uns mit Ihren Anliegen zu kontaktieren.