Die 7 Wohnungen teilen sich auf 2 Häuser mit gesamt 12 Parteien auf.
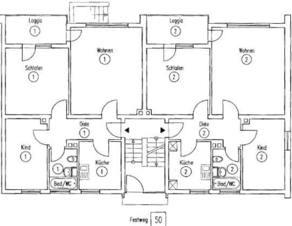
Die Wohnungen sind zeitgemäß, hell und freundlich geschnitten und haben eine Wohnungsgröße von ca. 67qm. Mieterwechsel sind äußerst selten – eine Vielzahl der Wohnungen sind bereits seit Jahrzehnten gut vermietet.
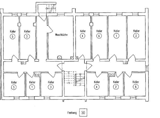
Die gesamte Wohnanlage ist unterkellert. Jeder Wohnung ist ein Kellerraum zugeordnet, Waschküchen sind vorhanden.
Beheizt werden die Häuser über eine Gasheizung (Zentral). Diese wurde erst vor wenigen Jahren erneuert. Die Fenster bestehen aus Kunststoff und ist 2-fach verglast. In einem Großteil der Wohnungen wurde bereits die Elektrik als auch das Bad erneuert.
Die Wohnungen wurden liebevoll von den Bewohnern gestaltet und befinden sich in einem ordentlichen und gepflegten Zustand.
Gepfelgt
In dieser Wohnlage profitieren Sie von einer guten Infrastruktur. Ruhig, mit dem Blick ins Grüne aber dennoch zentral. Einkaufsmöglichkeiten des täglichen Bedarfs sind fußläufig zu erreichen und auch die Stadtmitte Gelsenkirchens ist nur wenige Fahrminuten entfernt.
Schulen, Kindergärten und Krankenhäuser sowie öffentliche Verkehrsmittel sind schnell erreichbar.
Die Autobahnen A40/A42/B227 sind ebenfalls schnell erreichbar.
Das Gemeinschaftseigentum befindet sich in einem guten Zustand.
Zusammengefasst: Werthaltige Kapitalanlage in gutbürgerlicher Lage
Alle Angaben über das Objekt haben wir vom Verkäufer erhalten. Wir sind bemüht, alle Informationen so vollständig und richtig wie möglich zu erhalten. Bitte haben Sie Verständnis dafür, dass wir keine Gewährleistung für die Richtigkeit der Angaben übernehmen können. Die Exposéhaftung wird ausgeschlossen. Maßgeblich sind die zwischen Käufer und Verkäufer geschlossenen Vereinbarungen. Grundrisszeichnungen, Bemaßungen und Größenangaben sind ohne Gewähr. Soweit nicht angegeben erfolgt der Verkauf ohne eventuell auf den Fotos vorhandenem Mobiliar und Zubehör.
Entdecken Sie unsere aktuellsten Immobilienangebote. Wir präsentieren Ihnen die neuesten Immobilien in Ihrer Region. Jedes Objekt wird individuell geprüft und mit Expertise bewertet
Alle Angebote ansehenBeschreiben Sie uns Ihre Wunschimmobilie – wir melden uns mit passenden Angeboten bei Ihnen. Gehören Sie zu den ersten, die über unsere neuen Angebote informiert werden – schon vor der Veröffentlichung!



Bei Fragen oder Anfragen stehen wir jederzeit zur Verfügung. Bitte zögern Sie nicht, uns mit Ihren Anliegen zu kontaktieren.